更新日:2026年02月16日

芽室町中古住宅(物置付車庫)敷地(89.62坪)角地

1,380 万円

所在地 河西郡芽室町本通南8丁目4番地1
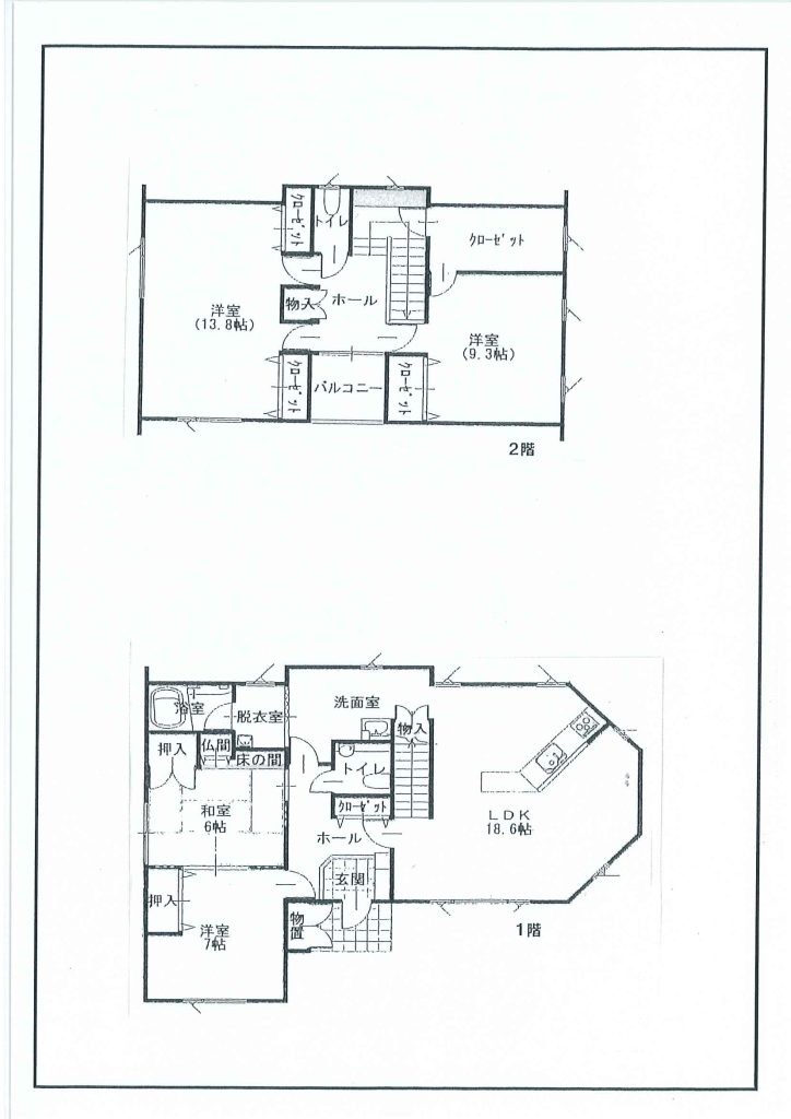
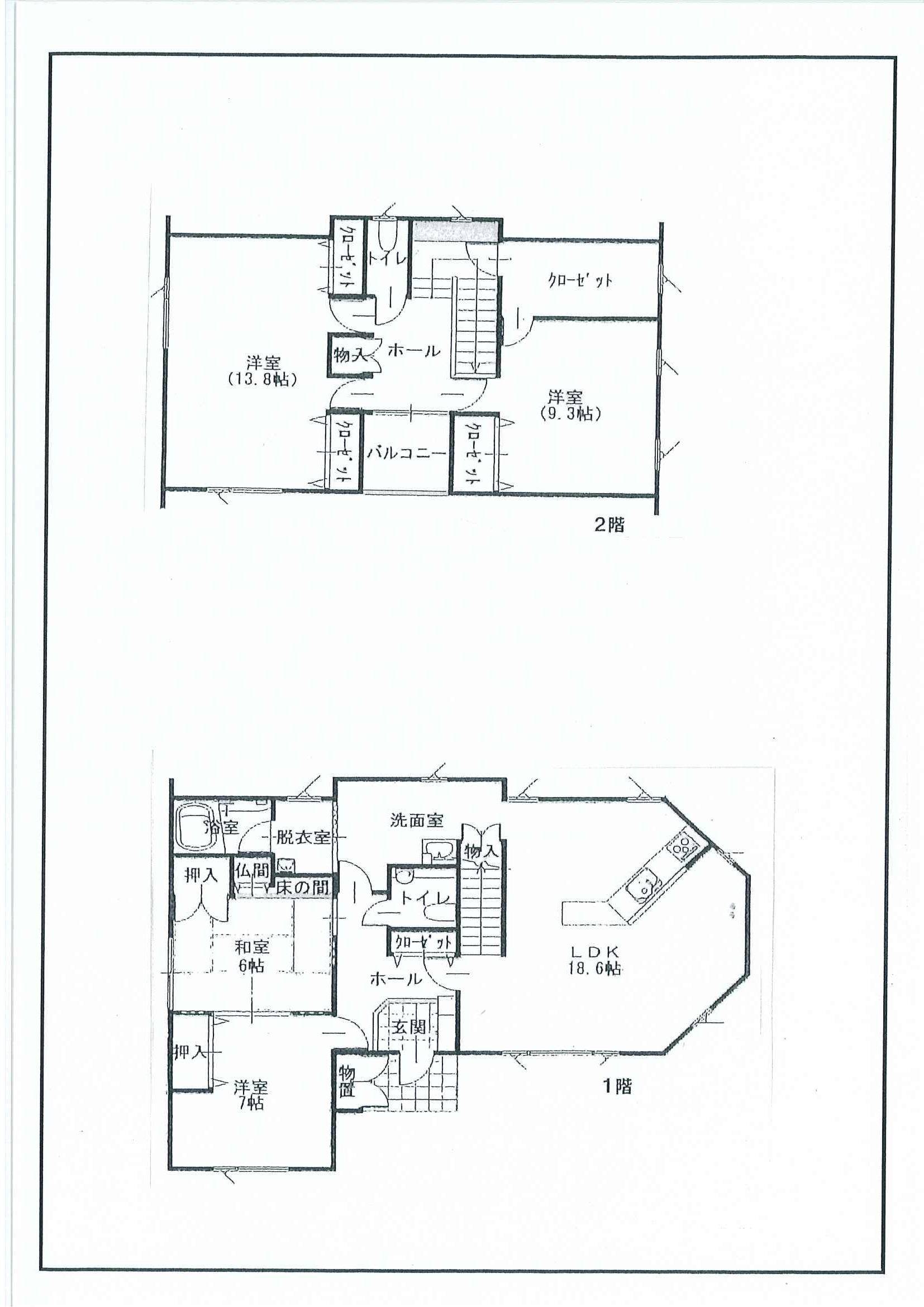
間取り 4LDK
(1階:居間兼台所(18.6)・洋間(7)・和室(6)・洗面所(3)・トイレ・2階:洋間(13.8)・洋間(9.3)Wクローゼット付・トイレ・(2階))
建物面積 147.15㎡( 44.51 坪)
土地面積 296.29㎡( 89.62 坪)
築年月 1997年10月13日
駐車場
交通 本通8丁目(じゃが)114m 徒歩2分
仲介手数料 521,400円(税込)

おすすめポイント

  • 車庫あり
  • 2階建て以上
  • 角地

物件詳細情報

建ぺい率 40% 容積率 60%
地目 地形・地勢 平坦
都市計画区域 市街化区域 用途地域 第一種住居地域
土地の権利形態 所有権 私道負担 なし
接面道路 北東角地 築年月 1997年10月13日
構造・工法 木造 階層 2階建
取引態様 仲介 入居可能時期 2026年3月末日
設備
  • 風呂:バス・トイレ別
  • 風呂:ユニットバス
  • トイレ:シャワー付き
  • トイレ:暖房便座
  • トイレ:2ヶ所以上
  • 洗面台:洗面台
  • 給湯:灯油
  • 暖房:灯油
  • キッチン:ガスコンロ
  • TV:地上波(テレビアンテナ)
  • ガス:プロパンガス
  • 物置:あり
  • エアコン:エアコン
  • インターホン:呼び出しのみ
備考

周辺情報

※学区の詳細は各市町村にお問い合わせください

取扱業者

株式会社アエル不動産企画

北海道知事免許 十勝(5)第604号
〒080-0045 帯広市西15条北5丁目1番地50
0155-34-8115/0155-34-8114
http://www.e-aeru.co.jp/