更新日:2026年02月16日
売地:札内あかしや町・(敷地:118坪)・・・建物解体更地渡し。
1,080 万円
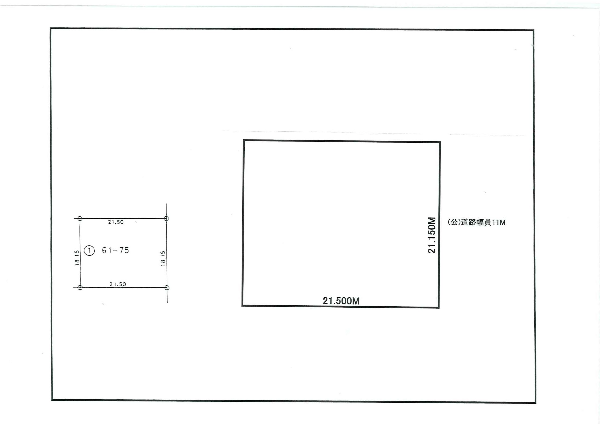
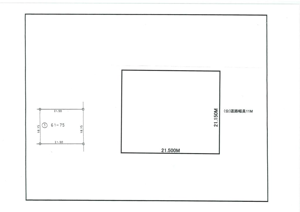
| 所在地 | 中川郡幕別町札内あかしや町61-75 |
|---|---|
| 土地面積 | 390.22㎡( 118.04 坪) |
| 坪単価 | 9.1万円 |
| 土地状況 | 更地渡し |
| 交通 | あかしや公住前160M (徒歩2分) |
| 仲介手数料 | 422,400円(税込) |
おすすめポイント
- 土地100坪以上
- 更地
- 整形地
- 建設条件なし
物件詳細情報
| 地目 | 宅地 | 地形・地勢 | 平坦 |
|---|---|---|---|
| 建ぺい率 | 40% | 容積率 | 60% |
| 建設条件 | なし | 都市計画区域 | 市街化区域 |
| 用途地域 | 第一種低層住居専用地域 | 土地の権利形態 | 所有権 |
| 私道負担 | なし | 接面道路 | 東道路付 |
| 諸費用 | ー | その他費用 | ー |
| 引渡可能時期 | ー | 取引態様 | 仲介 |
| 備考 | ー | ||
周辺情報
※学区の詳細は各市町村にお問い合わせください
取扱業者
株式会社アエル不動産企画
北海道知事免許 十勝(5)第604号
〒080-0045 帯広市西15条北5丁目1番地50
0155-34-8115/0155-34-8114
http://www.e-aeru.co.jp/